Local Expertise, Nationwide 24/7   sales@orangeltd.co.uk

Search Properties

Commercial yard space

Gravesend

POA

Department:
Commercial
Reference:
GRA250123
Postcode:
DA11 9AX
Type:
Industrial, Office
Availability:
To Let
Floor Area:
3,000 - 3,500 Sq Ft

Property features

  • HGV Access
  • Yard

Summary

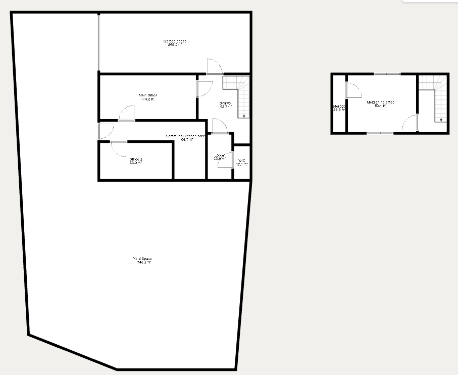
Large Yard Space – Suitable for accommodating large vehicles, ideal for logistics, storage, or industrial operations. 2 Ground Floor Offices – Perfect for admin or managerial use. Kitchen Area – Onsite kitchenette for staff use. Toilet Facilities – Available within the unit. Large Garage/Workshop – Ideal for mechanical or trade-based businesses. First-Floor Additional Office/Storage Space – Great flexibility for expanding operations or storage needs. Gated Entrance – Secure access via a gated entry point. Shared Yard – The yard is shared with an adjacent business, but offers ample room for maneuvering and parking large vehicles.

Details

Yard with Offices & Workshop for Rent – Northfleet Industrial Park
Approx. 3,500 Sq Ft Total Usable Space
Available from 1st August 2025

Property Overview:
A versatile industrial unit offering approx. 3,500 sq ft of combined yard, office, and workshop space – ideal for a range of commercial or trade-based uses. Situated in the well-connected Northfleet Industrial Park, with excellent links to major road networks.

Key Features:

Large Yard Area – Shared yard with ample space for large vehicle access, parking, and loading.

Two Ground Floor Offices – Suitable for day-to-day operations and administrative use.

Kitchenette and Toilet Facilities – Onsite for staff convenience.

Large Garage/Workshop Area – Ideal for mechanical, storage, or trade purposes.

First-Floor Office/Storage – Flexible upper-level space for expansion or storage.

Secure Gated Entrance – Added security for peace of mind.

Excellent Location – Quick access to the A2, M25, and other major transport routes.

Availability:
Available from 1st August 2025 – early interest is encouraged.

Location:
Located within Northfleet Industrial Park, offering strategic access to key distribution and transport corridors.

Floor Plans

Request Further Details

Or arrange a viewing

Free 60-second online valuation